Ausstattung
Das zweistöckige Ferienhaus kann durch maximal 30 Personen belegt werden. Einzelne Räume können abgetrennt und dadurch an Kleingruppen oder Familien vermietet werden.
Küche
Die Küche ist vollständig ausgestattet – mit zwei Backöfen, Induktionskochfeld, Kaffeemaschine (Nespresso), Kühl- und Gefrierschränken, Racletteöfen, Fondue-Caquelons, Mixer und Thermoskrügen. Geschirr ist für mindestens 30 Personen vorhanden.
Schlafräume
Die Schlafräume sind mit Kopfkissen mit Überzügen ausgestattet. Mit einem von Ihnen mitgebrachten Schlafsack geniessen Sie einen erholsamen Schlaf.
- Lager 1: 6 Betten
- Lager 2: 6 Betten
- Lager 3: 13 Betten
- Lager 4: 2 Betten
- Lager 5: 3 Betten
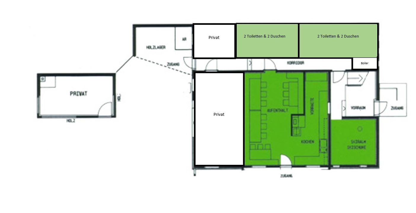
Toiletten / Duschen
Es stehen zwei getrennte Garderoben mit je zwei Toiletten und zwei Duschen zur Verfügung.
Grundriss
Erdgeschoss





